返回
Inclined Plate Thickener
分类

Swash Plate Thickener Overview

日期:2017-05-12 来源:http://www.wx-hdkj.com/en-xbnmj/310.html

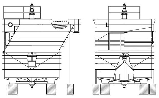
   Swash plate thickener is also known as swash plate concentrating box. The shell of the thickener is made of thin steel plate, whose upper part turns an oblique square and is filled with tilting plates arranged in parallel; the bottom of the lower part is a cone and used for collecting precipitate. When operating, ore pulp flows to the middle part of the tilling plates along the width of the entire box through a narrow groove and then flow through the concentration plate upwards. Clarified liquor is discharged from the overflow box on the top and precipitate deposits from the concentration plate and slides downward to the cone-shaped box in the bottom and finally is discharged from the ore discharge pipe in the bottom. The working principle of the swash plate thickener is the same with that of traditional thickeners. They both separate the solid particles in the ore pulp by use of the gravity settling action, but its settlement action occurs in the cavity among all tilting plates of the equipment. Space among tilting plates is very small, fluid among them can form laminar flow easily and solid particles can fall on the plates by just settling for a very small distance and then slide along the tilting plates, so its effective settlement area is ten times that of the equipment’s original area.

201504130914419054.jpg

Use

  NXB swash plate thickener produced by us is a new generation of product developed on the basis of fully absorbing foreign advanced technology and combining with actual international mine characteristics and has been widely used.

    It is mainly used for ore dressing and clarification and concentration of fine slime and also can be used for solid-liquid separation of other industries.

 

Main Features

1. Small size, big settlement area, large processing capacity, the floor area is only one tenth that of the common thickener.

2. Overflow water is clear and underflow density is high.

3. The adoption of side feeding and closed feed channel can avoid disturbance of feeding on the ore pulp clarification and concentration processes.

4. Level height of the overflow slot is adjustable and can ensure ore pulp throughout-put capacity of each tilting pate is consistent.

5. Titling plates are long and their space is small, which enlarges the settlement area and guarantees the settlement effect at the same time.


Wuxi Hengda Mining Machinery Co., Ltd. is mainly engaged in the R&D of disc vacuum filters, filter presses and other solid-liquid separation and dehydration equipment. It is one of the enterprises mainly producing disc vacuum filters in China. The main products include ZPG (PGT and GPT) and GP series of disk vacuum filters, XMZ series of automatic filter presses and thickeners (swash plate thickener), XGZ series of scraper conveyer with cast-stone liner, and so forth, which are mainly used in metallurgy, ore dressing, coal, building materials, environmental protection, chemical industry and other industries.

 

  Our leading products include dehydrating ZPG (PGT, GPT) disc vacuum filter used in metallurgy and ore dressing (iron ore concentrate, nonferrous metal concentrate and non-metal ores) and coal (clean coal) dehydrating GP series of disc vacuum filters. We also have long carried out close cooperation with academic institutions and mining enterprises and absorbed and refer advanced technologies of Germany, Finland, the USA, etc. In addition, we have a backbone team integrating R&D, production and service into a whole with more than 20 years of experience. We have already produced the sixth generation of filter, which are available in Russia, Canada, Brazil, Australia, Southeast Asia, Central Asia, North Korea, Vietnam and throughout China, and highly praised by users. 

 

    We sincerely wish to join hands with customers and design institutes on the basis of mutual benefit, in a bid to shape a beautiful future!